Surveying equipment on a rooftop with a mountain landscape in the background.

Existing Conditions Surveys

Space Data Capture


  • We capture Existing Conditions using 3D LIDAR scanning. The “Point Cloud” files created from our scan eliminate the need for return trips and provide extremely precise dimensions.

  • We then convert the Existing Conditions from the Point Clouds and can provide plans in AutoCAD or Revit formats. Floor Plans, RCP, Roof Plans, Elevations, and other layers can be provided.

  • A 360-degree Photo Walk-Through for Marketing, Design, and other inspections is available with each survey.

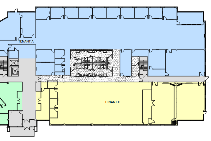
Floor plan showing two color-coded tenant areas: blue at the top and left, yellow at the bottom, with gray and green sections, staircases, and elevator shafts in the center.

Building Measurement System


  • Square Footage Calculations (BMS, BOMA, or other market-specific methods)

  • Square Footage Calculation Management

  • Stacking Plans

  • Lease Outline Description Plans

  • CAD updates of building modifications to maintain accurate as-built plans.

Floor plan of an office building with multiple suites labeled Suite A, Suite B, Suite C, and other areas. Suites contain office spaces, conference rooms, open work areas, and amenities. The layout includes elevators, staircases, restrooms, storage rooms, and a fitness room.

Building Marketing Support


  • Marketing Brochure creation and support

  • 3D Visualizations, Renderings & Videos of Proposed Improvements

  • Record Keeping of Building Files

  • Due Diligence Inspections, Plans/Exhibits, Property Condition Reports, and Transaction Management