Invo-Space

Existing Conditions Surveys & Plans | Building Measurement Services

Leasing & Marketing Support | Due Diligence Services

Services

Invo-Space utilizes the latest LiDAR scanning technology, proficient CAD and REVIT drafting, objective Building Measurement methodologies, and a wealth of industry expertise to provide the following services to Commercial Real Estate Owners, Brokers, Contractors, Lenders, and Designers. We utilize A.I. to support our operations, but we are proudly people-powered and offer insights and internal Quality Checks that can only come from years of experience in all aspects of Commercial Real Estate buildings and projects.

Existing Conditions Survey and Plans

We precisely capture Existing Conditions using 3D LIDAR scanning and offer customizable deliverable packages including “Point Cloud” files; REVIT/AutoCAD Floor Plans, RCPs, Elevations, Roof Plans; 3D Photo Walk-Throughs; and full Asset Diligence Services including MEP scans and findings.

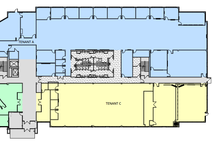
Building Measurement Systems

We provide Square Footage Calculations (Rentable/Useable, Loss Factor, Common Area, Etc), Stacking Plans, and Lease Outline Diagrams (LODs) to Owners/Landlords of any type of asset. We can update building CAD/REVIT files to capture any modifications and maintain accurate as-built plans for clients.

Plan & File Storage Services

Marketing Support

We work with Owners’ and Brokers’ Marketing Teams to create brochures, floor plans, 3D visualizations and walk-throughs, renderings, and videos of both existing conditions and proposed improvements. We offer continuous storage of plans and other files.

Clients We Serve

  • We capture the existing conditions of all types and conditions of buildings and convey to your team in REVIT, AutoCAD, or raw Point Cloud formats. Scalable 3D photo-walkthroughs are also part of our standard delivery. Floor plans, exterior elevations, roofs, MEP components and equipment are just some of our capabilities.

  • We support Leasing, Property Management, and Acquisitions/Due Diligence Operations with prompt mobilizations and turn-around times for many services including Leasing Brochures, Lease Exhibits, CAD/REVIT plans, Building Measurements, and Property Condition Reports.

    Our BMS team also works accounting/financing teams to clarify and trouble-shoot Rent Rolls and Stacking Plans.

  • Our LIDAR scans capture existing conditions, layouts, framing, and Mechanical/Electrical/Plumbing rough-ins, in far greater detail than traditional measurements.

  • We capture existing conditions and dimensions for your marketing efforts and for use in proposed new designs and Lease/Purchase documents. Our BMS teams can create value and provide clear stacking plans and square footage for accounting/financing.

  • We survey and provide plans for Lease Exhibits, Purchase and Sale Agreements, Condominium Agreements as well as supporting many aspects of the Due-Diligence process.

Our clients choose us because we offer

  • An industry-leading turnaround time. We can mobilize at a moment's notice and can provide plans within 48 hours after a survey.

  • Architectural, Engineering, and BMS Continuity. We'll maintain the records as building occupancy, tenants, layout, and even ownership changes.

  • A wealth of experience and panoptic perspective resulting from many years of commercial real estate projects, leases, sales, and developments.